© Copyright 2019. Tutti i diritti sono riservati - SALAPROGETTO - Piazza Cesare Battisti n. 16 - 23897, Viganò (LC)
- PROGETTAZIONE EDILIZIA RESIDENZIALE - RISTRUTTURAZIONE CHIAVI IN MANO - PRATICHE EDILIZIE E CATASTALI
- ARREDO SU MISURA - STIME IMMOBILIARI - ARCHITETTURA D'INTERNI

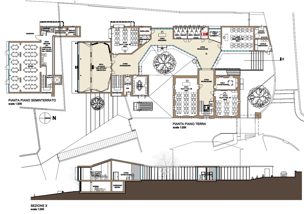
Ristrutturazione ed ampliamento con adeguamento sismico della scuola primaria di Cesana B.za.
in COLLABORAZIONE con Arch. Giorgio ISELLA - Ing. Luigi MONTANELLI (strutture) - Ing. Mauro POZZI (impianti)



© Copyright 2019. Tutti i diritti sono riservati - STUDIO ARCHITETTURA D'INTERNI di SALA ALESSANDRO - Piazza Cesare Battisti n. 16 - 23897, Viganò (LC)